101_GLK
Durch die Positionierung des Neubaus im Nordwesten der Parzelle erhält die Sekundarschule zum Dorf hin ein neues Gesicht. Der westliche Aussenbereich erhält als klar definierter Zugangsbereich eine neue urbane Qualität. Das bestehende Wegenetz wird aufgenommen und weitergeführt.
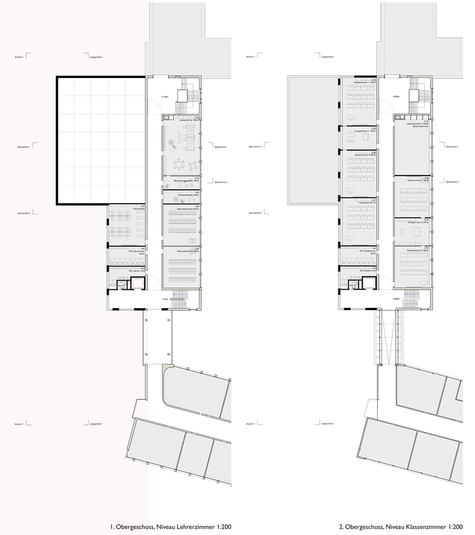
Das komplette Raumprogramm kann ebenerdig oder vom Hofniveau aus gesehen in einem Sockelgeschoss angeboten werden. Der Schulbetrieb organisiert sich neu in einem zweispännigen Gebäude. Die neue polyvalent nutzbare Aula bildet das Kernstück des Neubaus, die Bauweise ist aus Holz. Es entsteht ein Netz von kurzen, klaren Wegen.
Ein neues gemeinsames Satteldach mit einer Titanzink-Eindeckung vereint den Neubau mit dem Bestand. Das angestrebte Ziel, die Minergie-P-Anforderungen einzuhalten, wird sichergestellt durch die kompakte Gebäudehülle und durch die Verwendung von Holz sowie Recycling-Beton aus Betongranulat.
Projekt
- 101_GLK
Ort
- Gelterkinden BL
Wettbewerb
- 2016








